APPA HM50A2 / Superbe 2 pièces de 30 m² avec vue mer, terrasse, parking privé et WIFI
Disponibilités
Présentation
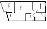
Location vacances à Sète : Confortable deux pièces de 30 m2 habitable avec une belle terrasse de 6 m2, offrant une sublime vue mer. L'appartement est situé au 2ème étage (sans ascenseur.) Les plages sont en face la résidence à 50 m. Les commerces sont à 500m. Particulièrement bien équipé et joliment rénové, cet appartement dispose d'un canapé-lit d'angle à 2 places dans le séjour, d'une télévision et d'un coin cuisine (avec 2 plaques inductions, frigo-congélateur, four micro-onde, lave-linge et lave vaisselle). Dans la chambre, on trouve un lit pour 2 personnes et une commode. A l'entrée rangement et penderie. La résidence est très agréable et arborée. Un emplacement de parking est prévu pour cet appartement au N°60, fermeture par un portail électrique. Accès Internet. Animaux non admis. Arrivée tardive possible : 50€ (détails nous consulter.)
Services OPTIONNELS selon disponibilité : location linge de lit (15€ par lit), location serviettes (12€ par personne), nettoyage fin de séjour (hors cuisine) 60€, mini box wifi (39€/semaine)
A régler à l'arrivée, taxe de séjour (5,5% du prix du séjour) et dépôt de garantie (300€) par carte
N° d'enregistrement en mairie : 3430100047740
Services OPTIONNELS selon disponibilité : location linge de lit (15€ par lit), location serviettes (12€ par personne), nettoyage fin de séjour (hors cuisine) 60€, mini box wifi (39€/semaine)
A régler à l'arrivée, taxe de séjour (5,5% du prix du séjour) et dépôt de garantie (300€) par carte
N° d'enregistrement en mairie : 3430100047740
Informations
- Type d'habitation :
- Appartement
- Nombre de pièces :
- T2
- Surface (Hors Terrasse, Loggia, Salle de Bains, WC et Placards) :
- 30 m2
- Accès personne à mobilité réduite :
- non
- Animaux acceptés :
- Non
- Capacité maximum :
- 4 personnes
- Niveau :
- 2ème étage
Équipements & Services
- Descriptif habitation :
- Parking privé
- Salon de jardin
- Toilette séparée
- Salle d'eau avec douche
- Descriptif confort :
- Cafetière
- Lave linge privatif
- Réfrigérateur / congélateur
- Lave vaisselle
- Ventilateur
- Table à repasser
- plaques à induction
- Télévision
- Sèche cheveux
- Equipements :
- Lave linge privatif
- Lave vaisselle
- Four
- WIFI
- Four à micro-ondes
- Fer à repasser
- Aspirateur
- Informations Complémentaires :
- Terrasse
- Équipements & Services :
Coordonnées du propriétaire
Agence Amarine
Chemin des Quilles
Les Marines de St Clair Bat A
BP 10303
34200
SETE
Destination
15 BD JOLIOT CURIE
Horizons Marins N°50 A2
34200
SETE
Coordonnées GPS
Latitude : 43.39473472680882
Longitude : 3.6695401539673185

































